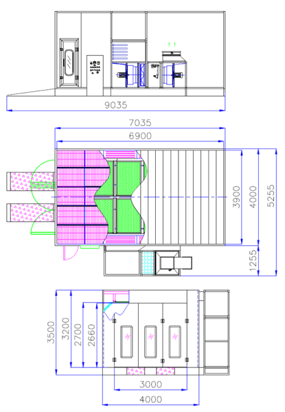
Камера для окраски легкового транспорта Guangli GL2 (200 кВт) предназначена для окраски легковых автомобилей и коммерческого транспорта. Металлическое основание со 100% полнорешетчатым полом.
Внешние габариты: длина-7,0м; ширина-5,3м; высота-3,5м.
Внутренние габариты: длина-6,9м ширина-3,9м; высота-2,7м.
Дизельная горелка Riello G20: мощность 200 кВт.
Приточный вентилятор: мощностью 5.5 кВт.
Вытяжной вентилятор: мощностью 4 кВт.
Внешние габариты: длина-7,0м; ширина-5,3м; высота-3,5м.
Внутренние габариты: длина-6,9м ширина-3,9м; высота-2,7м.
Дизельная горелка Riello G20: мощность 200 кВт.
Приточный вентилятор: мощностью 5.5 кВт.
Вытяжной вентилятор: мощностью 4 кВт.
| Страна производства | КНР |
| Бренд | Guangli (Китай) |
| Мощность, кВт | 200 кВт (5,5+4) |
Характеристики
Камера для окраски легкового транспорта Guangli GL2 (ГАЗ) (200 кВт) предназначена для окраски легковых автомобилей и коммерческого транспорта. Металлическое основание со 100% полнорешетчатым полом.
Внешние габариты: длина-7,0м; ширина-5,3м; высота-3,5м.
Внутренние габариты: длина-6,9м ширина-3,9м; высота-2,7м.
Газовая горелка Riello FS20: мощность 200 кВт.
Приточный вентилятор: мощностью 5.5 кВт.
Вытяжной вентилятор: мощностью 4 кВт.
Внешние габариты: длина-7,0м; ширина-5,3м; высота-3,5м.
Внутренние габариты: длина-6,9м ширина-3,9м; высота-2,7м.
Газовая горелка Riello FS20: мощность 200 кВт.
Приточный вентилятор: мощностью 5.5 кВт.
Вытяжной вентилятор: мощностью 4 кВт.
| Страна производства | КНР |
| Бренд | Guangli (Китай) |
| Мощность, кВт | 200 кВт (5,5+4) |
Характеристики
Пост подготовки к окраске с верхним пленумом Guangli GL400 Пост подготовки к окраске легкового транспорта. Внешние габариты: длина - 7,3 ширина - 3,5 м; высота - 3,1 м Внутренние габариты: длина - 6 ширина - 3,4 м; высота - 2,7 м Установка на ровный пол, вытяжка в задней стенке. В комплекте: Приточный вентелятор - отсутствует. Вытяжной вентилятор - 5,5 кВт. ...
| Страна производства | КНР |
| Бренд | Guangli (Китай) |
Характеристики
Пост подготовки к окраске с верхним пленумом Guangli GL600 Пост подготовки к окраске легкового транспорта. Внешние габариты: Длина — 7.3 м, ширина — 4 м, высота — 3.1 м Внутренние габариты: Длина — 6 м, ширина — 3.9 м; высота — 2.7 м Установка на ровный пол, вытяжка в задней стенке. В комплекте: Приточный вентелятор - отсутствует. Вытяжной вентилятор - 5,5 кВт. ...
| Страна производства | КНР |
| Бренд | Guangli (Китай) |
Характеристики
Окрасочно-сушильная камера Guangli GL3 (200 кВт) предназначена для окраски легковых автомобилей и коммерческого транспорта. Металлическое основание со 100% полнорешетчатым полом.
Внешние габариты: длина-7,0м; ширина-5,3м; высота-3,5м.
Внутренние габариты: длина-6,9м ширина-3,9м; высота-2,7м.
Дизельная горелка Riello G20: мощность 200 кВт.
Приточный вентилятор: мощностью 7.5 кВт.
Вытяжной вентилятор: мощностью 5.5 кВт.
Внешние габариты: длина-7,0м; ширина-5,3м; высота-3,5м.
Внутренние габариты: длина-6,9м ширина-3,9м; высота-2,7м.
Дизельная горелка Riello G20: мощность 200 кВт.
Приточный вентилятор: мощностью 7.5 кВт.
Вытяжной вентилятор: мощностью 5.5 кВт.
| Страна производства | КНР |
| Бренд | Guangli (Китай) |
| Мощность, кВт | 200 кВт (7,5+5,5) |
Характеристики
Окрасочно-сушильная камера Guangli GL3 LUX (300 кВт) предназначена для окраски легковых автомобилей и коммерческого транспорта. Металлическое основание со 100% полнорешетчатым полом.
Внешние габариты: длина-7,0м; ширина-5,3м; высота-3,5м.
Внутренние габариты: длина-6,9м ширина-3,9м; высота-2,7м.
Дизельная горелка Riello G20: мощность 300 кВт.
Приточный вентилятор: мощностью 7.5 кВт.
Вытяжной вентилятор: мощностью 7.5 кВт.
Внешние габариты: длина-7,0м; ширина-5,3м; высота-3,5м.
Внутренние габариты: длина-6,9м ширина-3,9м; высота-2,7м.
Дизельная горелка Riello G20: мощность 300 кВт.
Приточный вентилятор: мощностью 7.5 кВт.
Вытяжной вентилятор: мощностью 7.5 кВт.
| Страна производства | КНР |
| Бренд | Guangli (Китай) |
| Мощность, кВт | 300 кВт (7,5+7,5) |
Характеристики
Пост подготовки к окраске Guangli GL622 с верхним пленумом и подогревом. Пост подготовки к окраске легкового транспорта. Внешние габариты: длина - 7,3 ширина - 4 м; высота - 3,1 м. Внутренние габариты: длина - 6 ширина - 3,9 м; высота - 2,7 м. Металлическое основание со 100% полнорешетчатым полом нагрузкой 600 кг на отпечаток колеса. В комплекте: Приточ. вент.- 5,5 кВт. Вытяж. вент.- 5,5 кВт. ...
| Страна производства | КНР |
| Бренд | Guangli (Китай) |
Характеристики
Окрасочно-сушильная камера Guangli GL3 LUX (ГАЗ) (300 кВт) предназначена для окраски легковых автомобилей и коммерческого транспорта. Металлическое основание со 100% полнорешетчатым полом.
Внешние габариты: длина-7,0м; ширина-5,3м; высота-3,5м.
Внутренние габариты: длина-6,9м ширина-3,9м; высота-2,7м.
Газовая горелка Riello RS5D: мощность 300 кВт.
Приточный вентилятор: мощностью 7.5 кВт.
Вытяжной вентилятор: мощностью 7.5 кВт.
Внешние габариты: длина-7,0м; ширина-5,3м; высота-3,5м.
Внутренние габариты: длина-6,9м ширина-3,9м; высота-2,7м.
Газовая горелка Riello RS5D: мощность 300 кВт.
Приточный вентилятор: мощностью 7.5 кВт.
Вытяжной вентилятор: мощностью 7.5 кВт.
| Страна производства | КНР |
| Бренд | Guangli (Китай) |
| Мощность, кВт | 300 кВт (7,5+7,5) |
Характеристики
Окрасочно-сушильная камера Guangli GL9 имеет в своей основе металлическое основание высотой 30 см. Напольные решётки (цельные) выдерживает нагрузку до 600 кг на одно колесо. В стандартном исполнении камера комплектуется дизельной горелкой из нержавеющей стали Riello G20S итальянского производства. Мощность горелки составляет 200 кВт, 90 % нагретого воздуха подвергается рециркуляции. Наружные размеры: Длина — 8.7 м, ширина — 5.6 м, высота — 4.2 м Внутренние размеры: Длина — 8.6 м, ширина — 4 м, высота — 3.5 м. ...
| Страна производства | КНР |
| Бренд | Guangli (Китай) |
Характеристики
Окрасочно-сушильная камера для окраски грузового транспорта Guangli GL10 имеет в своей основе металлическое основание высотой 30 см. Напольные решётки (цельные) выдерживает нагрузку до 600 кг на одно колесо. В стандартном исполнении камера комплектуется дизельной горелкой из нержавеющей стали Riello G20S итальянского производства. Мощность горелки составляет 300 кВт, 90 % нагретого воздуха подвергается рециркуляции. Наружные размеры: Длина — 15.2 м, ширина — 6.7 м, высота — 5 м Внутренние размеры: Длина — 15 м, ширина — 5 м, высота — 4.5 м. ...
| Страна производства | КНР |
| Бренд | Guangli (Китай) |
Характеристики

