Акция
Артикул:
GL2
Окрасочно-сушильная камера Guangli GL2 предназначена для окраски легковых автомобилей и коммерческого транспорта.
Окрасочно-сушильная камера Guangli GL2 (Металлическое основание со 100% полнорешетчатым полом, нагрузка на две полосы решеток до 600кг на отпечаток колеса)
Камера для окраски легкового и коммерческого транспорта:
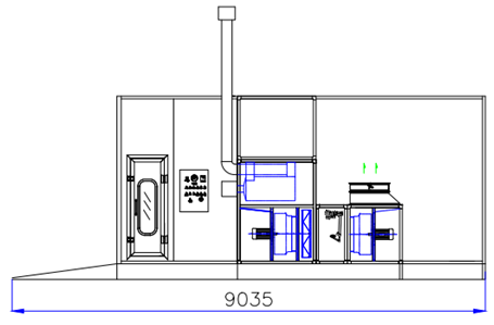
Внешние габариты: длина-7,0 м; ширина-5,3 м; высота-3,5 м.
Внутренние габариты: длина-6,9 м ширина-3,9 м; высота-2,7 м.
Размер ворот: ШхВ: ширина-3000 высота-2635 мм
В комплекте:
Итальянская дизельная горелка Riello G20: мощность 200 кВт.
Приточный вентилятор: мощностью 5.5 кВт. 18 000 м³/ч.
Вытяжной вентилятор: мощностью 4 кВт. 15 000 м³/ч.
Теплообменник: из жаростойкой нержавеющей стали.
Освещение:
Верхнее освещение: 8 плафонов по 3 лампы, каждая 18 Вт
Боковое освещение: 8 плафонов по 2 лампы, каждая 18 Вт
Опции:
Замена на газовую горелку Riello FS 20 мощностью 200 кВт. (Цена по запросу)
Описание:
Окрасочно-сушильная камера Guangli GL2 имеет в своей основе металлическое основание высотой 30 см. Напольные решётки выдерживает нагрузку до 600 кг на одно колесо. В стандартном исполнении камера Guangli GL2 комплектуется дизельной горелкой Riello G20 итальянского производства. Мощность горелки составляет 200 кВт, 90 % нагретого воздуха подвергается рециркуляции. Корпус камеры собирается из сэндвич-панелей толщиной 50 мм. В качестве наполнителя используется пенополистирол, опционально можно в качестве наполнителя использовать минеральную вату. Фронтальная дверь покрасочной камеры состоит из 3-х створок, аварийная дверь находится сбоку камеры, она оборудована замком «Антипаника».
Основные особенности:
Данная окрасочно-сушильная камера оборудована двумя вентиляторами: приточным и вытяжным. Наличие двух вентиляторов позволяет обеспечивать воздухообмен внутри камеры до 18 000 м³/ч, скорость потока воздуха внутри камеры составляет 0.20 м/с. Приточный вентилятор обладает мощностью 5.5 кВт, мощность вытяжного вентилятора составляет 4,0 кВт. 15 000 м³/ч. Заслонка, переключающая режимы окраска/сушка, срабатывает с помощью ручного привода. Система фильтров состоит из: потолочного фильтра (степень фильтрации 98 %), напольного фильтра (степень фильтрации 95 %) и фильтра предварительной очистки (степень фильтрации 80 %). Потолочный фильтр состоит из 4-х кассет, которые монтируются под потолком, выполненной из стали. Напольный фильтр укладывается под напольными решетками.
Управление:
Блок управления и его компоненты импортного производства, они защищены от перегрузки, перегрева и пропадания фазы, мотор с линейным приводом. При истечении заданных значений времени, работа камеры автоматически прекращается. Покраска происходит при постоянной температуре. Питание камеры осуществляется посредством трёхфазной сети с напряжением 380 В.
Сэндвич-панель, наполненная пенополистиролом, толщина 50 мм
Основание:
Металлическое основание камеры и группы притока высотой 30 см
Габаритные размеры:
Наружные размеры: Длина — 7 м, ширина — 5.3 м, высота — 3.5 м
Внутренние размеры: Длина — 6.9 м, ширина — 3.9 м, высота — 2.7 м
Входы:
Главная дверь: Трехстворчатая, ширина — 3 м, высота — 2.7 м
Аварийная дверь: Ширина — 0.8 м, высота — 2 м
Освещение:
Верхнее освещение — 8 плафонов по 3 лампы, каждая 18 Вт
Боковое освещение — по 2 лампы, каждая 18 Вт
Воздухообмен:
приточный 1 х 5.5 кВт, воздухообменом 18000 м3/ч
вытяжной 1 х 4.0 кВт, воздухообменом 15000 м3/ч
Вентиляционные агрегаты:
Вытяжной вентилятор мощностью 5.5 кВт
Вытяжной вентилятор мощностью 4 кВт
Температурные режимы:
Горелка RIELLO G20, тепловая мощность 200 кВт. Рециркуляция — 90% теплого воздуха Температура: цикл покраски — 20°С при -3°С, цикл сушки — 60°/80°С
Фильтрация:
Система фильтров: Фильтр предварительной очистки: степень фильтрации — 80% Потолочный фильтр: степень фильтрации — 98% Напольный фильтр: степень фильтрации — 95%
Решетки напольные:
Со 100% полнорешётчатым полом, нагрузка на две полосы решёток. До 600 кг на отпечаток колеса.
Питание:
Электрическая трехфазная сеть напряжением 380 В, 11 кВт — 26 А
Габаритные размеры Guangli GL2



Принцип работы камеры в разных режимах:

Схема размещения ОСК в транспорте:
Окрасочно-сушильная камера Guangli GL2 (Металлическое основание со 100% полнорешетчатым полом, нагрузка на две полосы решеток до 600кг на отпечаток колеса)
Камера для окраски легкового и коммерческого транспорта:
Внешние габариты: длина-7,0 м; ширина-5,3 м; высота-3,5 м.
Внутренние габариты: длина-6,9 м ширина-3,9 м; высота-2,7 м.
Размер ворот: ШхВ: ширина-3000 высота-2635 мм
В комплекте:
Итальянская дизельная горелка Riello G20: мощность 200 кВт.
Приточный вентилятор: мощностью 5.5 кВт. 18 000 м³/ч.
Вытяжной вентилятор: мощностью 4 кВт. 15 000 м³/ч.
Теплообменник: из жаростойкой нержавеющей стали.
Освещение:
Верхнее освещение: 8 плафонов по 3 лампы, каждая 18 Вт
Боковое освещение: 8 плафонов по 2 лампы, каждая 18 Вт
Опции:
Замена на газовую горелку Riello FS 20 мощностью 200 кВт. (Цена по запросу)
Описание:
Окрасочно-сушильная камера Guangli GL2 имеет в своей основе металлическое основание высотой 30 см. Напольные решётки выдерживает нагрузку до 600 кг на одно колесо. В стандартном исполнении камера Guangli GL2 комплектуется дизельной горелкой Riello G20 итальянского производства. Мощность горелки составляет 200 кВт, 90 % нагретого воздуха подвергается рециркуляции. Корпус камеры собирается из сэндвич-панелей толщиной 50 мм. В качестве наполнителя используется пенополистирол, опционально можно в качестве наполнителя использовать минеральную вату. Фронтальная дверь покрасочной камеры состоит из 3-х створок, аварийная дверь находится сбоку камеры, она оборудована замком «Антипаника».
Основные особенности:
Данная окрасочно-сушильная камера оборудована двумя вентиляторами: приточным и вытяжным. Наличие двух вентиляторов позволяет обеспечивать воздухообмен внутри камеры до 18 000 м³/ч, скорость потока воздуха внутри камеры составляет 0.20 м/с. Приточный вентилятор обладает мощностью 5.5 кВт, мощность вытяжного вентилятора составляет 4,0 кВт. 15 000 м³/ч. Заслонка, переключающая режимы окраска/сушка, срабатывает с помощью ручного привода. Система фильтров состоит из: потолочного фильтра (степень фильтрации 98 %), напольного фильтра (степень фильтрации 95 %) и фильтра предварительной очистки (степень фильтрации 80 %). Потолочный фильтр состоит из 4-х кассет, которые монтируются под потолком, выполненной из стали. Напольный фильтр укладывается под напольными решетками.
Управление:
Блок управления и его компоненты импортного производства, они защищены от перегрузки, перегрева и пропадания фазы, мотор с линейным приводом. При истечении заданных значений времени, работа камеры автоматически прекращается. Покраска происходит при постоянной температуре. Питание камеры осуществляется посредством трёхфазной сети с напряжением 380 В.
Технические характеристики Guangli GL2
Стены:Сэндвич-панель, наполненная пенополистиролом, толщина 50 мм
Основание:
Металлическое основание камеры и группы притока высотой 30 см
Габаритные размеры:
Наружные размеры: Длина — 7 м, ширина — 5.3 м, высота — 3.5 м
Внутренние размеры: Длина — 6.9 м, ширина — 3.9 м, высота — 2.7 м
Входы:
Главная дверь: Трехстворчатая, ширина — 3 м, высота — 2.7 м
Аварийная дверь: Ширина — 0.8 м, высота — 2 м
Освещение:
Верхнее освещение — 8 плафонов по 3 лампы, каждая 18 Вт
Боковое освещение — по 2 лампы, каждая 18 Вт
Воздухообмен:
приточный 1 х 5.5 кВт, воздухообменом 18000 м3/ч
вытяжной 1 х 4.0 кВт, воздухообменом 15000 м3/ч
Вентиляционные агрегаты:
Вытяжной вентилятор мощностью 5.5 кВт
Вытяжной вентилятор мощностью 4 кВт
Температурные режимы:
Горелка RIELLO G20, тепловая мощность 200 кВт. Рециркуляция — 90% теплого воздуха Температура: цикл покраски — 20°С при -3°С, цикл сушки — 60°/80°С
Фильтрация:
Система фильтров: Фильтр предварительной очистки: степень фильтрации — 80% Потолочный фильтр: степень фильтрации — 98% Напольный фильтр: степень фильтрации — 95%
Решетки напольные:
Со 100% полнорешётчатым полом, нагрузка на две полосы решёток. До 600 кг на отпечаток колеса.
Питание:
Электрическая трехфазная сеть напряжением 380 В, 11 кВт — 26 А
Габаритные размеры Guangli GL2



Принцип работы камеры в разных режимах:

Схема размещения ОСК в транспорте:
Документы
Отзывы
Оставить отзыв
Загрузка отзывов...
Вы можете воспользоваться одним из следующих вариантов оплаты:
- Оплата наличными. Мы принимаем наличные деньги (только рубли) через кассовый фискальный аппарат.
- Безналичный расчет для юридических и частных лиц.
- Оплата банковской картой. Оплата происходит через ПАО СБЕРБАНК с использованием Банковских карт следующих платежных систем: VISA, VISA Electron, Maestro, MasterCard, МИР
Товар можно получить одним из следующих способов:
- Самовывоз товара с пункта выдачи по адресу в вашем городе.
- Курьерская доставка с 9-00 до 23-00 по рабочим дням. Покупатель обязуется разгрузить оборудование собственными силами и в кратчайшие сроки. Простой автомобиля оплачивается отдельно.
- Доставка одной из следующих транспортных компаний: "ПЭК" (Первая Экспедиционная Компания), "ЖДЭ" (ЖелДорЭкспедиция), "ЭНЕРГИЯ", "ДЕЛОВЫЕ ЛИНИИ", "СДЭК" и другие.

